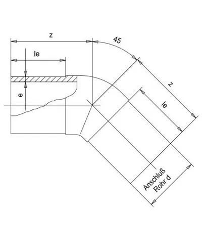
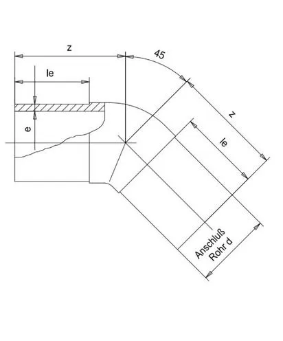
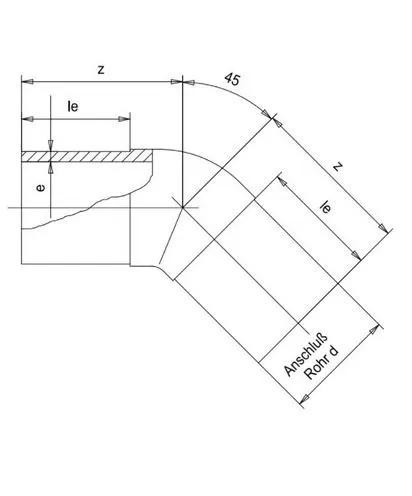
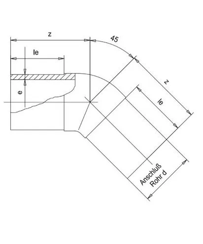
Отвод 45° с длинными патрубками для стыковой сварки SDR 11-S 5
Отвод 45° PP-H (полипропилен гомополимер) 125 мм SDR11 PN6 с длинными патрубками для стыковой сварки. Предназначен для применения в составе промышленных трубопроводных систем, транспортирующих воду, технические и химические среды с температурой до 100 °С. Фитинги соответствуют стандарту ГОСТ 32415-2013.
Диаметр:
125
Бренд:
FIP
















