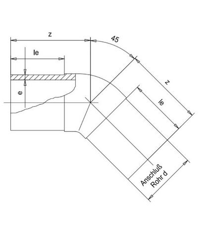
Отвод 45°, SDR11 PP-H литой с длинными патрубками для стыковой сварки
Отвод 45° PP-H (полипропилен гомополимер) 125 мм SDR11 PN6 с длинными патрубками для стыковой сварки. Фитинг предназначен для применения в составе промышленных трубопроводных систем, транспортирующих воду, технические и химические среды с температурой до 100 °С. Соответствуют стандарту ГОСТ 32415-2013.
Диаметр:
125
Бренд:
Simona











