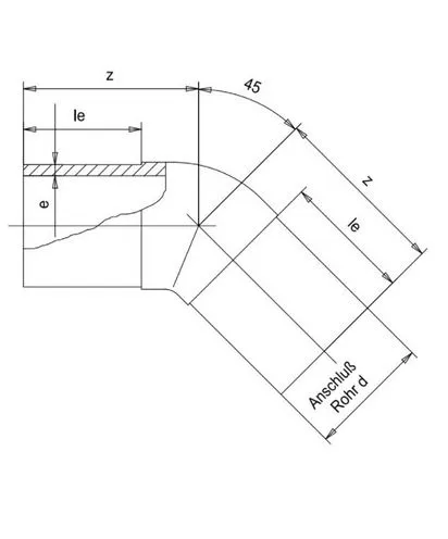
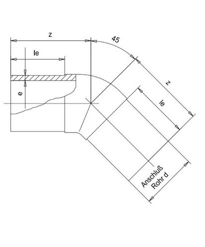
Отвод 45°, SDR17,6 PP-Н литой с длинными патрубками для стыковой сварки
Отвод 45° PP-H (полипропилен гомополимер) 160 мм SDR17.6 PN10 с длинными патрубками для стыковой сварки. Фитинг предназначен для применения в составе промышленных трубопроводных систем, транспортирующих воду, технические и химические среды с температурой до 100 °С. Соответствуют стандарту ГОСТ 32415-2013.
Диаметр:
160
Бренд:
Simona














