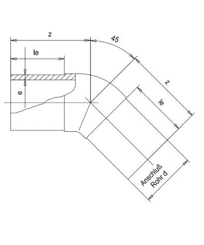
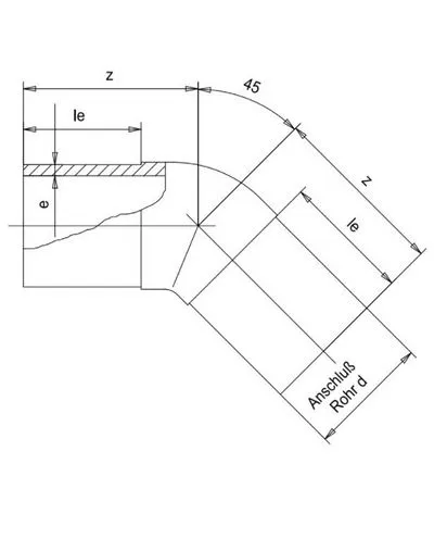
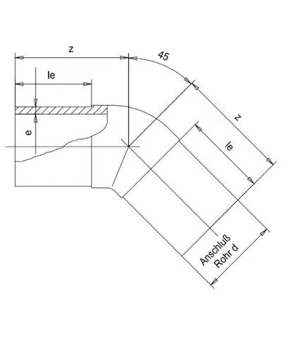
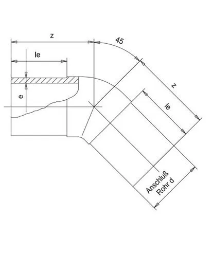
Отвод 45°с длинными патрубками для стыковой сварки SDR 17,6-8,3
Отвод 45° PP-H (полипропилен гомополимер) 140 мм SDR17.6 PN10 с длинными патрубками для стыковой сварки. Предназначен для применения в составе промышленных трубопроводных систем, транспортирующих воду, технические и химические среды с температурой до 100 °С. Фитинги соответствуют стандарту ГОСТ 32415-2013.
Диаметр:
140
Бренд:
FIP














