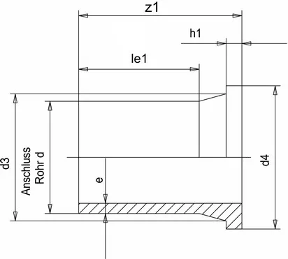
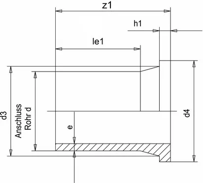
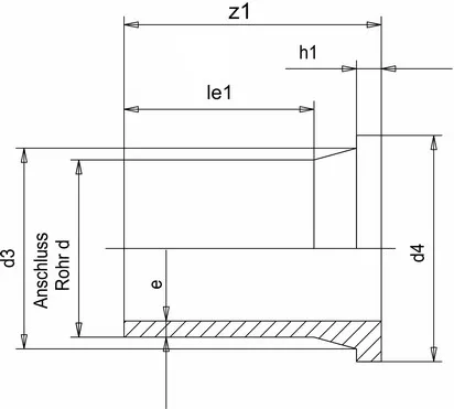
Заглушка с длинным патрубком для стыковой сварки SDR 17,6 - S 8,3
Заглушка PP-H (полипропилен гомополимер) 400 мм SDR17.6 PN10 с длинным патрубком для стыковой сварки. Фитинг предназначен для применения в составе промышленных трубопроводных систем, транспортирующих воду, технические и химические среды с температурой до 100 °С. Соответствуют стандарту ГОСТ 32415-2013.
Диаметр:
400
Бренд:
FIP

















