Бурт под фланец ODB, стандарт ISO / DIN, SDR 17,6
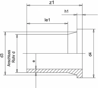
Бурт под фланец PP-H (полипропилен гомополимер) 280 мм SDR17.6 PN6 для стыковой сварки. Фитинг предназначен для применения в составе промышленных трубопроводных систем, транспортирующих воду, технические и химические среды с температурой до 100 °С. Соответствуют стандарту ГОСТ 32415-2013.
Диаметр:
d280
Бренд:
FIP















