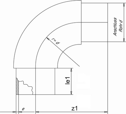
Изгиб 90°, SDR17,6 PP-R литой с длинными патрубками для стыковой сварки
Изгиб 90° PP-H (полипропилен гомополимер) 90 мм SDR17.6 PN10 с длинными патрубками для стыковой сварки. Фитинг предназначен для применения в составе промышленных трубопроводных систем, транспортирующих воду, технические и химические среды с температурой до 100 °С. Соответствуют стандарту ГОСТ 32415-2013.
Диаметр:
90
Бренд:
Simona














