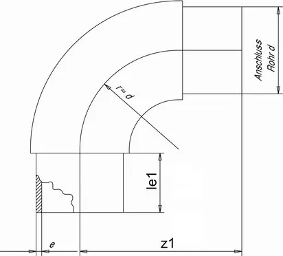
Отвод 90° с короткими патрубками для стыковой сварки SDR 17,6-S 8,3
Отвод 90° PP-H (полипропилен гомополимер) 250 мм SDR17.6 PN10 с короткими патрубками для стыковой сварки. Предназначен для применения в составе промышленных трубопроводных систем, транспортирующих воду, технические и химические среды с температурой до 100 °С. Фитинги соответствуют стандарту ГОСТ 32415-2013.
Диаметр:
250
Бренд:
FIP
















