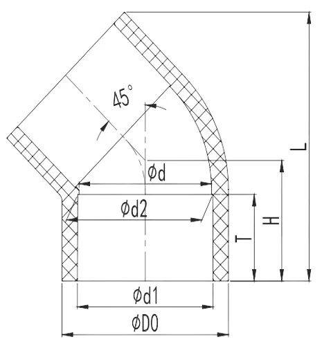
Отвод 45° муфтовые окончания для холодной сварки (клеевые соединения)
Отвод ПВХ 45 градусов, клеевое муфтовое соединение с двух сторон. Бренд: IPS.
Диаметр:
75
Давление:
PN16
Материал:
Непластифицированный поливинилхлорид (НПВХ)
Температура рабочей среды:
0-60C
Соединение:
Клеевое
Бренд:
IPS













