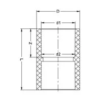
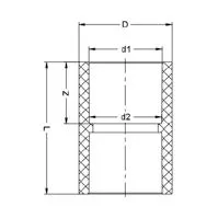
Муфта ХПВХ соединительная клеевая d355
Муфты соединяют участки трубопровода, по которому подаётся нейтральная или слабоагрессивная жидкость. Монтаж фитингов производится с помощью технологии холодной сварки. Производитель: IPS.
Диаметр:
355
Бренд:
IPS
















