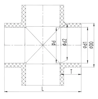
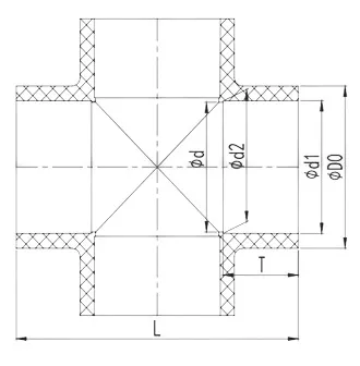
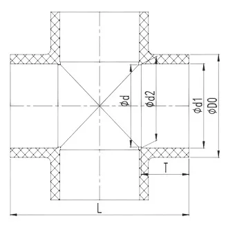
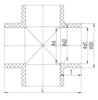
Крестовина 90° муфтовые окончания для холодной сварки (клеевое соединение)
Крестовина ПВХ клеевая. Бренд: IPS.
Диаметр:
63
Давление:
PN16
Материал:
Непластифицированный поливинилхлорид (НПВХ)
Температура рабочей среды:
0-60C
Соединение:
Клеевое
Бренд:
IPS













