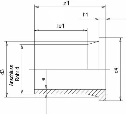
Бурт под фланец ODB, стандарт ISO / DIN, SDR 17,6
Бурт под фланец PP-H (полипропилен гомополимер) 400 мм SDR17.6 PN6 для стыковой сварки. Фитинг предназначен для применения в составе промышленных трубопроводных систем, транспортирующих воду, технические и химические среды с температурой до 100 °С. Соответствуют стандарту ГОСТ 32415-2013.
Диаметр:
d400
Бренд:
FIP














