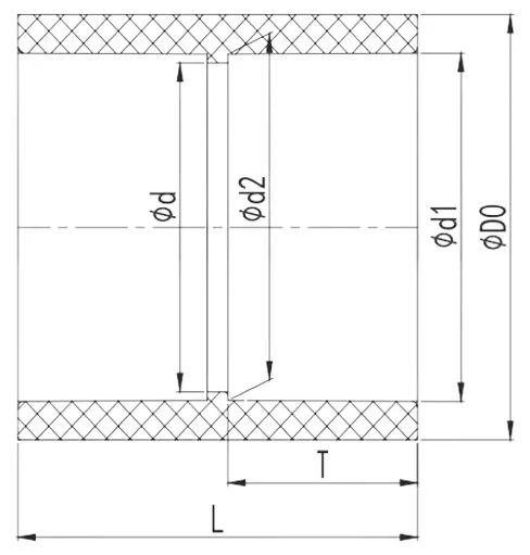
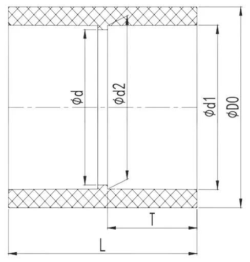
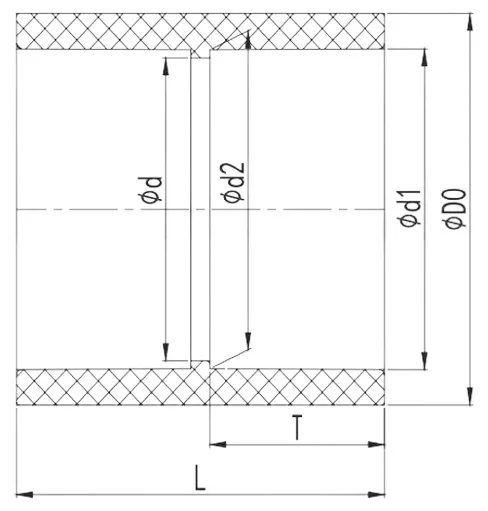
Соединительная муфта клеевая (под холодную сварку)
Соединительная муфта под клеевое соединение. Бренд: IPS.
Диаметр:
20
Давление:
PN16
Материал:
Непластифицированный поливинилхлорид (НПВХ)
Температура рабочей среды:
0-60C
Соединение:
Клеевое
Бренд:
IPS













