На сайте указаны розничные цены. Для получения оптовых и индивидуальных скидок пришлите заявку на почту.
Москва
Частным лицам:+7 (925) 114-32-11
Организациям:

Отвод для стыковой сварки 90° PP-H IPS PN10 d355 IGBM11355

В наличии
Артикул:IGBM11355

Отвод для стыковой сварки 90° PP-H IPS PN10 d355

для юр. лиц
69814 ₽
для физ. лиц
По запросу
Мы уверены в надежности нашей продукции.
На все товары действует гарантия сроком 1 год.

Добавить в корзину

Описание

Отвод 90° для стыковой сварки PP-H IPS
Отвод 90° для стыковой сварки PP-H. Бренд: IPS
Диаметр:

355

Бренд:

IPS

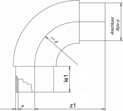
Размерный ряд

Артикул
D
PN
DN
L
e
Вес
IGBM111601601015018514.61,81
IGBM1131531510300277.528.611,47
IGBM11020201015512.50,01
IGBM11025251020562.70,02

Показать все

Файлы

AFINARA. Каталог продукции
AFINARA. Каталог продукции

В представленном каталоге вы найдете полный ассортимент продукции ГК AFINARА.

Отвод для стыковой сварки 90° PP-H IPS PN10 d355

В наличии

Отвод 90° для стыковой сварки PP-H. Бренд: IPS

Похожие товары

Перейти в каталог

Рекомендуемые товары

Перейти в каталог