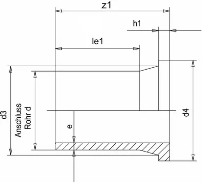
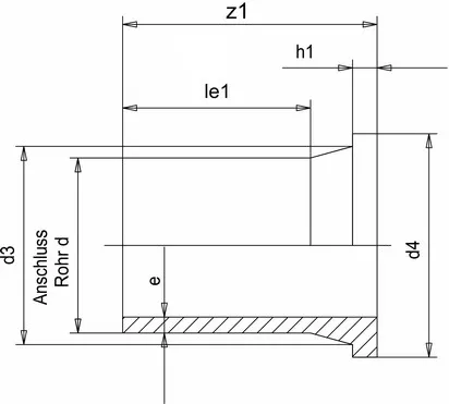
Бурт под фланец ODB (по стандарту DIN) для раструбной сварки, метрический стандарт
Бурт под фланец PP-H (полипропилен гомополимер) 40 мм PN10 для раструбной сварки. Предназначен для применения в составе промышленных трубопроводных систем, транспортирующих воду, технические и химические среды с температурой до 100 °С. Фитинги соответствуют стандарту ГОСТ 32415-2013.
Диаметр:
40
Бренд:
FIP
















